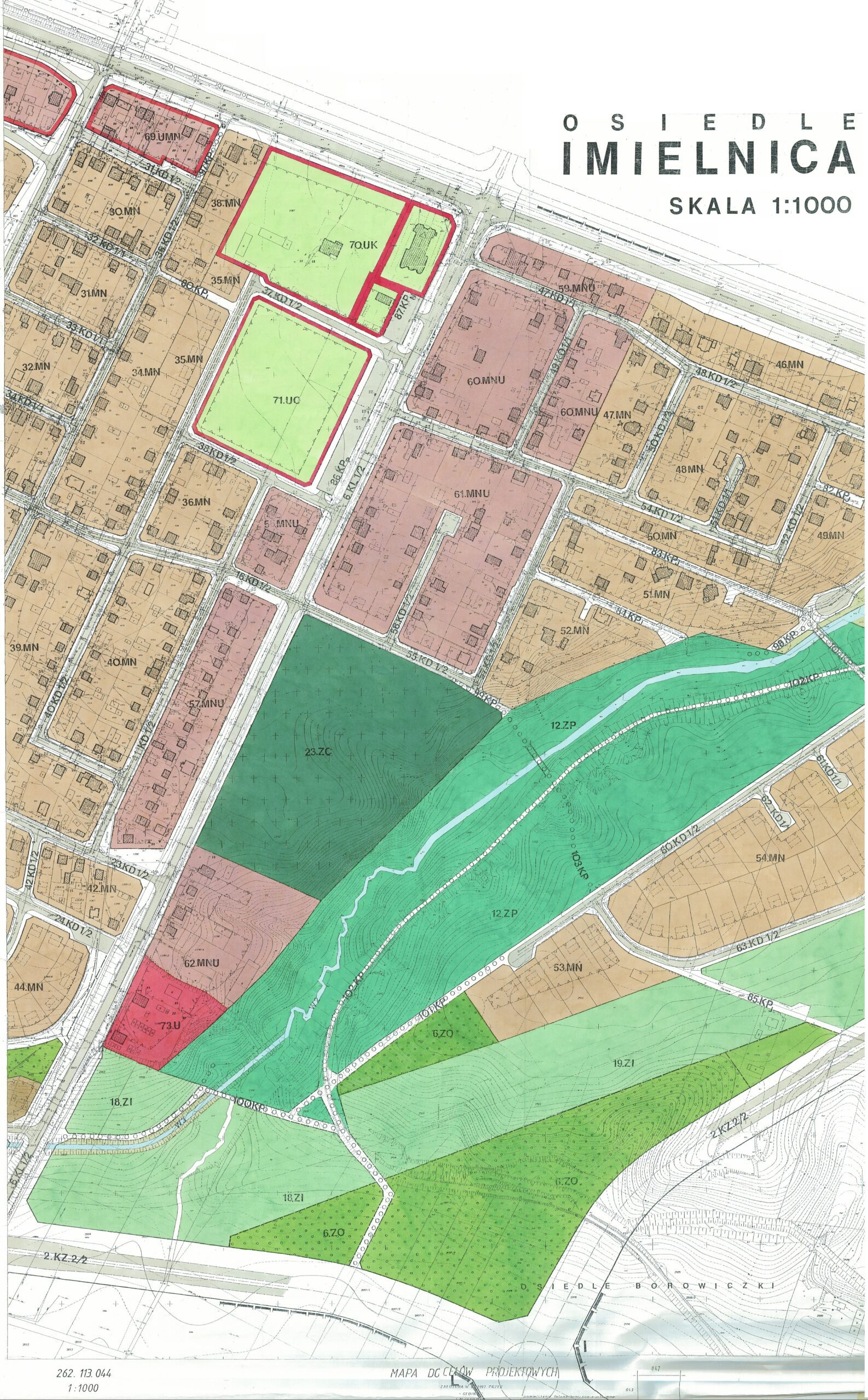
MPZP osiedli Imielnica i Borowiczki wraz z Ośnicą w Płocku
Plan nr 14 – Miejscowy plan zagospodarowania przestrzennego osiedli Imielnica i Borowiczki wraz z Ośnicą w Płocku
Uchwała Nr 673/XXXI/00 Rady Miasta Płocka z 19 września 2000 roku w sprawie miejscowego planu zagospodarowania przestrzennego osiedli Imielnica i Borowiczki wraz z Ośnicą w Płocku, opublikowana w Dzienniku Urzędowym Województwa Mazowieckiego w dniu 17 lutego 2001 roku Nr 22, poz. 194
Część planu dotycząca osiedla Borowiczki została zmieniona przez Miejscowy plan zagospodarowania przestrzennego „Borowiczki” w Płocku (plan nr 66)
Część planu dotycząca osiedla Imielnica została zmieniona przez Miejscowy plan zagospodarowania przestrzennego „Imielnica” w płocku (plan nr 68) w związku z wydanym rozstrzygnięciem nadzorczym Wojewody Mazowieckiego Plan nr 14 obowiązuje tylko w części terenu 76.EE .
Rysunek planu:
