Plan nr 86
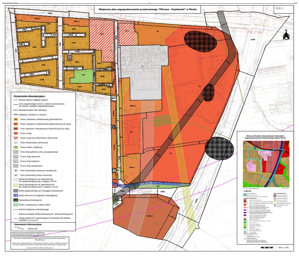
Miejscowy plan zagospodarowania przestrzennego „Filtrowa – Popiełuszki” w Płocku
Uchwała Nr 328/XVIII/2025 Rady Miasta Płocka z dnia 30 października 2025 r. w sprawie Miejscowego planu zagospodarowania przestrzennego „Filtrowa – Popiełuszki” w Płocku, opublikowana w Dzienniku Urzędowym Województwa Mazowieckiego w dniu 7 listopada 2025 roku poz. 9385.
Prezentowany na stronie plan miejscowy ma charakter poglądowy
ZAPOZNAJ SIĘ Z TREŚCIĄ UCHWAŁY
Rysunek planu

W ramach prowadzonych procedur administracyjnych wydawane są następujące dokumenty związane tym miejscowym planem zagospodarowania przestrzennego:
- Zaświadczenie o przeznaczeniu terenu w miejscowym planie zagospodarowania przestrzennego lub braku miejscowego planu zagospodarowania przestrzennego
- Wypis i wyrys z miejscowego planu zagospodarowania przestrzennego
- Zaświadczenie o zgodności zamierzonego sposobu użytkowania obiektu budowlanego z miejscowym planem zagospodarowania przestrzennego
- Zaświadczenie o zgodności budowy z obowiązującym miejscowym planem zagospodarowania przestrzennego
Pełna informacja dotycząca wyżej wymienionych wniosków i procedur
